Nội thất thông minh và tiện lợi cho căn hộ studio
Các kiến trúc sư đã thiết kế các vật dụng nội thất có thể gập lại và di chuyển để thay đổi công năng, ban ngày là nợi làm việc và dùng làm gường ngủ khi cần, rất phù hợp cho các căn hộ Officetel đang thịnh hành tại thành phố Hồ Chí Minh

Với không gian hạn chế, thách thức đối với kiến trúc sư là tạo ra những không gian rộng rãi để ăn và ngủ, nhưng cũng phải cung cấp cho khách hàng một văn phòng thu nhỏ để làm việc.
Các vật dụng nội thất di động và gấp tích hợp chỗ ngồi, bề mặt, kho và giường được sử dụng để hoàn đổi công năng khi cần.

KTS đã đưa vào trong không gian bằng một giải pháp đồ gỗ chuyển động có thể thay đổi để tối đa hóa khả năng lưu trữ, đồng thời tạo ra các khu vực và mục đích sử dụng thay thế trong một diện tích sàn nhỏ gọn.

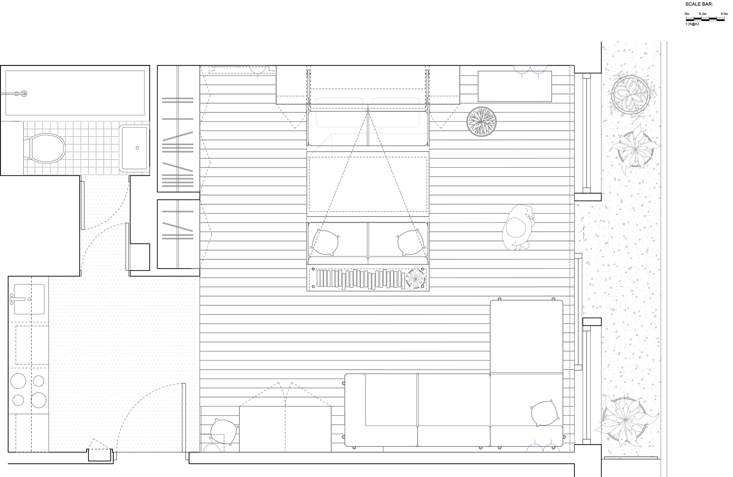
Đồ nội thất tiết kiệm không gian được tạo thành từ một số mô-đun. Các phần chính là bộ lưu trữ cao đến trần nhà, tích hợp giường gấp và giá sách kiểu thư viện.
Cả hai phần này đều tích hợp chỗ ngồi băng ghế, sẽ lộ ra khi giường được gấp dựa vào tường. Bàn dạng phẳng cũng có thể được xẻ rãnh, được hỗ trợ trên các chân có thể tháo rời.

Việc lắp ráp và tháo ráp từ các chế độ chính diễn ra rất nhanh chóng, mất khoảng hai phút.

Các ngăn tủ khác nhau tạo ra nhiều không gian để cất giữ gối, giường và đệm ngồi khi chúng không sử dụng. Ngoài ra còn có các hốc nhỏ có chức năng làm bàn đầu giường.


Màu xanh và hồng được chọn để bổ sung cho bê tông thô và đồ gỗ lộ ra ngoài.







